Terug naar onderkastenHoge kasten met handgreepGreeploze hoge kasten met verticale greeplijstGreeploze hoge kasten met horizontale greeplijstOpzetkasten voor hoge kasten
BovenkastenPasstukkenPlintenKorpusafwerkingKeukenkastensets9.2Kiyoh
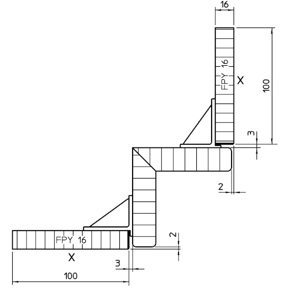
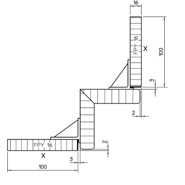
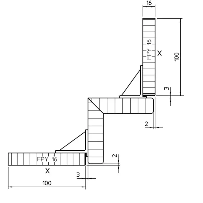
BeschrijvingHoekpasstuk 90° voor loze hoek onderkasten
90° hoekpasstuk voor het realiseren van een loze hoek bij onderkasten. Het passtuk heeft een hoogte van 78 cm.
De plaatsingsmaat geeft aan hoeveel ruimte het hoekpasstuk nodig heeft ten opzichte van de muren. Deze maat is gebaseerd op de situatie waarin aan beide zijden van de hoekkast onderkasten staan met een korpusdiepte van 56 cm.

Wanneer je naast het hoekpasstuk een onderkast plaatst met een grotere korpusdiepte van 61 cm, dan moet het hoekpasstuk 5 cm verder van de muur worden geplaatst. Dit verschil ontstaat doordat deze kast 5 cm dieper is dan de standaarddiepte van 56 cm.

Can we help?
336 customers give us a 9.2 at Kiyoh








